Rezidence Adamov - Byt 04.41
Napište nám

Nabídka bytů

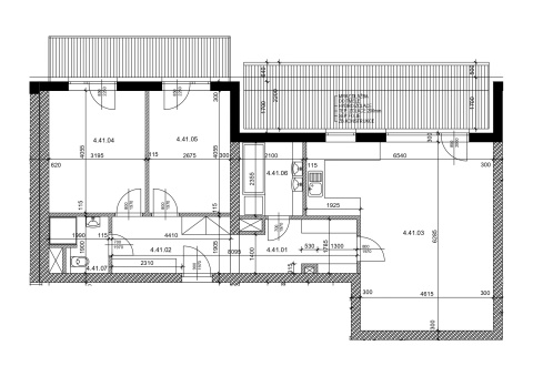
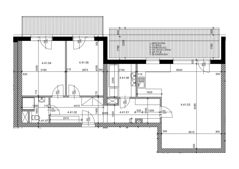
detail bytu Byt 04.41

3+kk s vlastní volbou vnitřního vybavení.

Stav Volný
Dispozice 3+kk
Nadzemní podlaží 4. NP
Rozloha 82,8 m²
Lodžie 26,00 m²
Cena 7 941 354 Kč

Půdorys bytu

Financování Koupě a financování

Díky exkluzivní spolupráci se společností Váš konzultant, která zajišťuje pro klienty komplexní servis v rámci financování, můžete svůj byt pořídit zcela bez starostí a to za nejvýhodnějších podmínek na trhu.

Rezidence Adamov je zasmluvněna u největších českých bank za zvýhodněných úrokových sazeb.

Váš Průvodce financování Ondřej Makiš

Úvěrový specialista

+420 777 250 690 ondrej.makis@vaskonzultant.cz Kontaktovat

Žádost o rezervaci