Rezidence Adamov - Byt 01.03
Napište nám

Nabídka bytů

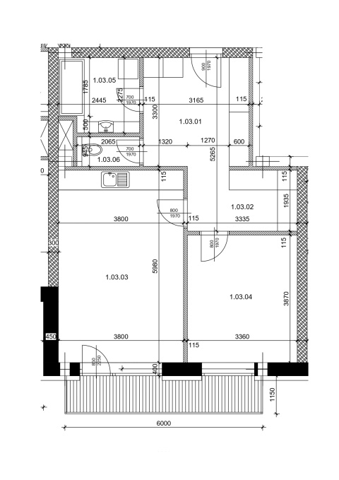
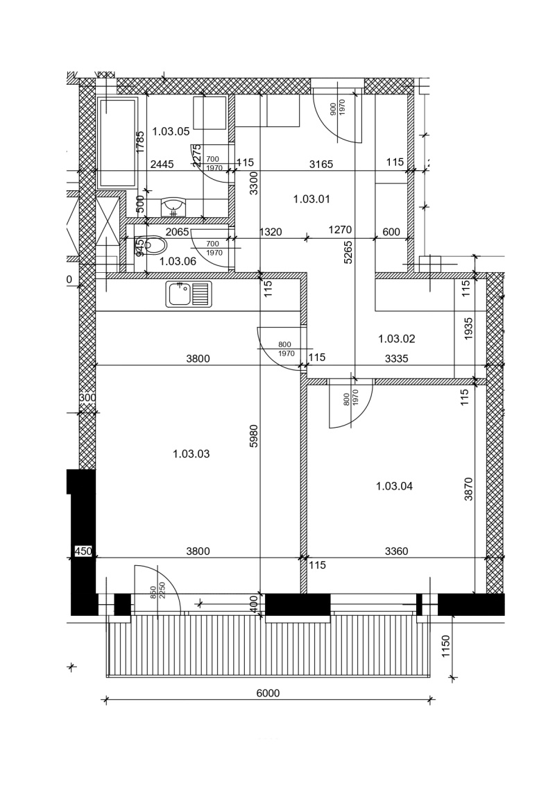
detail bytu Byt 01.03

2+kk s vlastní volbou vnitřního vybavení.

Stav Rezervovaný
Dispozice 2+kk
Nadzemní podlaží 1. NP
Rozloha 62,17 m²
Balkon 6,10 m²
Cena 4 946 592 Kč

Půdorys bytu

Financování Koupě a financování

Díky exkluzivní spolupráci se společností Váš konzultant, která zajišťuje pro klienty komplexní servis v rámci financování, můžete svůj byt pořídit zcela bez starostí a to za nejvýhodnějších podmínek na trhu.

Rezidence Adamov je zasmluvněna u největších českých bank za zvýhodněných úrokových sazeb.

Váš Průvodce financování Ondřej Makiš

Úvěrový specialista

+420 777 250 690 ondrej.makis@vaskonzultant.cz Kontaktovat